Leave a Message

Thank you for your message. I will be in touch with you shortly.

Explore My Properties

Property Description

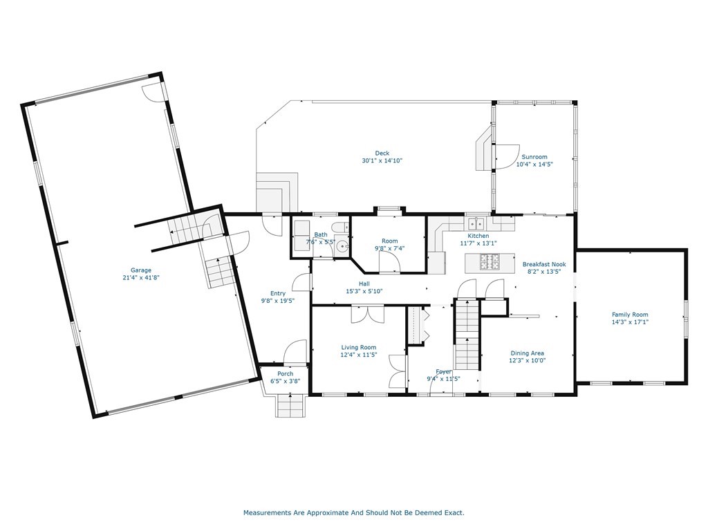
Welcome to your spacious colonial in a desirable neighborhood with private 1 acre lot. This 2200 sq. ft home boasts 4 beds, 2.5 baths, multiple living areas and a 3 car garage! Enter your beautiful home through the mudroom with weather friendly flooring. Head down the hall past your laundry room and half bath. There is an office and a formal living room as you continue towards your eat-in kitchen and separate formal dining room. Your kitchen is equipped with granite countertops, maple cabinets and a large center island with gas range. Through your kitchen is a generous family room with vaulted ceilings and brand new carpeting. Off of your eat-in kitchen is a screened-in porch which leads to an abundant composite deck overlooking your private back yard. Upstairs, head into your oversized main bedroom suite with cathedral ceilings, mini-split and walk in closet. There are three more bedrooms and a second full bath upstairs. The full walkout basement is just waiting to be finished!

Overview

Property Status
Sold
Lot Size
1.07 Acres
MLS ID
73179821
Property Type
Residential
Year Built
1996

Features & Amenities

Total Area
2,230 Sq.Ft.
Neighborhood
Uxbridge
Architecture Styles
Colonial
Garage Spaces
3.0
Water Source
Public
Utilites
for Gas Range, for Electric Dryer, Washer Hookup, Generator Connection
Roof
Shingle
Lot Features
Corner Lot, Wooded
Parking
Attached, Storage, Workshop in Garage, Oversized
Heat Type
Baseboard, Oil, Ductless
Air Conditioning
Central Air, Ductless
Laundry Room
Bathroom - Half, Flooring - Laminate, Electric Dryer Hookup, Washer Hookup, First Floor
Appliances
Range, Dishwasher, Microwave, Refrigerator, Utility Connections for Gas Range, Utility Connections for Electric Dryer
Other Interior Features
Home Office, Central Vacuum
Sewer
Public Sewer
Substructure
Concrete Perimeter
Other Exterior Features
Porch - Enclosed, Deck - Composite
Sales Price
$625,000
Real Estate Tax
$6,725/yr
Zoning
RC

Downloads

108 Chamberlain Rd

Schedule a Tour

I would love to help you see this beautiful home! As a full-service brokerage, we can help you tour. Please submit an offer, and answer questions about the buying process.

Thank you

for your interest in 108 Chamberlain Rd, Uxbridge, MA 01569

108 Chamberlain Rd
Navigate
Uxbridge

Explore Uxbridge

read more

Follow Us On Instagram