Leave a Message

Thank you for your message. I will be in touch with you shortly.

Explore My Properties

Property Description

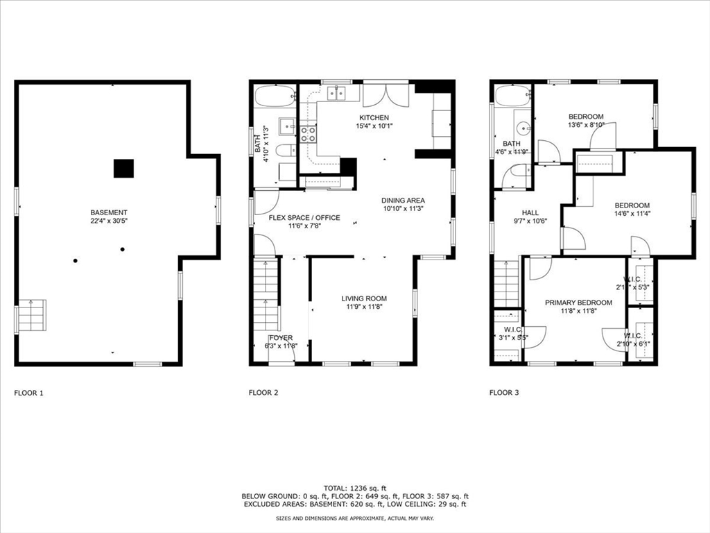
Delightful West Side/Tatnuck Neighborhood*Beautifully Updated, Immaculate Home w/an amazing amount of charm & character*This 3 bedroom,2 full bath home blends personality w/modern luxe features*Sun Filled modern/newer Kitchen with tile flooring, gleaming Granite counters, Tile Backsplash, SS Appliances, Recessed Lighting, Built-In Refrigerator w/Cabinets Surround & French Doors that lead out to back patio*Remarkable open FLOW & Flexible Floor Plan*Kitchen opens into DR and LR both w/hardwood flooring plus Flex space area ideal for in-home office*Laundry and a full tiled bathroom is also on the main level*Authentic Newell Post*Formal foyer leads you up to the 2nd level, which has 3 spacious bedrooms & full bathroom*Nice backyard w/patio & fenced in backyard*Updates include: freshly painted throughout, backyard fence, replacement Pella windows, plumbing, electrical, bathrooms; kitchen renovation, Navien Boiler & tankless Hot Water, dishwasher, washer & dryer*Showings start Sat 3/22*

Overview

Property Status
Sold
Lot Size
0.25 Acres
MLS ID
73348326
Property Type
Residential
Year Built
1924

Features & Amenities

Total Area
1,236 Sq.Ft.
Architecture Styles
Colonial, Bungalow, Greek Revival
Water Source
Public
Utilites
for Electric Range, for Electric Dryer, Washer Hookup
Roof
Shingle
Lot Features
Sloped
Parking
Paved Drive, Off Street, Paved
Heat Type
Baseboard, Natural Gas
Air Conditioning
Window Unit(s), 3 or More
Laundry Room
Flooring - Stone/Ceramic Tile, First Floor, Electric Dryer Hookup, Washer Hookup
Appliances
Gas Water Heater, Tankless Water Heater, Range, Dishwasher, Disposal, Microwave, Refrigerator, Washer, Dryer
Other Interior Features
Closet, Office
Sewer
Public Sewer
Substructure
Stone
Disability Features
No
Green Feature
Solar
Other Exterior Features
Porch, Patio, Rain Gutters, Fenced Yard
Elementary School
Tatnuck Magnet
Middle School
Forest Grove
High School
Doherty
Sales Price
$480,000
Real Estate Tax
$4,759/yr
Zoning
RS-7

Downloads

126 Beaconsfield Rd

Schedule a Tour

I would love to help you see this beautiful home! As a full-service brokerage, we can help you tour. Please submit an offer, and answer questions about the buying process.

Thank you

for your interest in 126 Beaconsfield Rd, Worcester, MA 01602

126 Beaconsfield Rd
Navigate

I'm Interested In

126 Beaconsfield Rd

or
  • CallAmy Marshall

    License #MA - 9568814 | RI - 45359

    (774) 571-0036
  • Follow Us On Instagram